項目簡介
項目展示

團結 務實 博采 求精

- 案 例 -
?
W A N G A I & 2 0 2 2
建筑裝飾設計與施工 | 建筑幕墻設計與施工
園林景觀設計與施工 | 美式別墅設計與裝修


錦繡江城
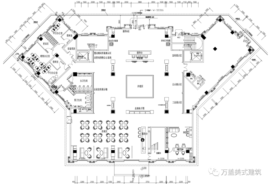
售樓部及樣板房空間
延續建筑設計理念,根據使用功能以及定位,我們以現代、舒適、人性化為出發點,從現代美學中提取相關元素,通過解構與演變等設計手法,用簡潔的設計語言表達空間。

設計本是一種生活方式的體驗,也是不同生活的各種感受和體會。設計就是以人為本,通過對人的五覺為基礎進入感覺—嗅覺、視覺、味覺、聽覺,最終達到身心合一及生活精神完美統一。然而這樣的設計最終需要在建筑物理學和人體工程學基礎上注入人性溫度。溫度設計— 思想、文化、責任,傳承及鮮活的生命體。
錦繡江城售樓部


在設計中,利用人文與自然的結合,突出城市印象和地理優勢。在結合功能、美觀、經濟的前提下, 突出簡約、明亮、時尚的設計空間理念。帶給參觀者清爽、放松與品質感。



“色”公共空間以暖色為主調,搭配金色作為空間點綴,在營造溫馨、舒適感的同時,塑造出回家的儀式感。“光”首層大堂采用自然采光搭配人工照明,入戶玻璃門將自然光引入到空間中,形成光影交互的視覺效果。
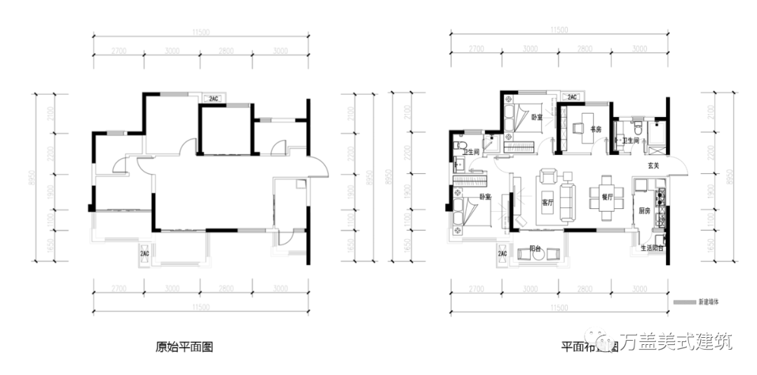
樣板房 | B戶型


戶型:B戶型
設計風格:現代簡約風格
設計在簡淡的米色調中,用楓葉色與金色進行局部點綴,以虛化實,將落楓的柔軟與日暮的暖意納入空間情調中,室內透著日常的味道,溫暖美好,靜寧安然。在部品的選擇上注重質感,匹配物質與精神層面的審美格調,呈現雅致時尚的空間氣質。


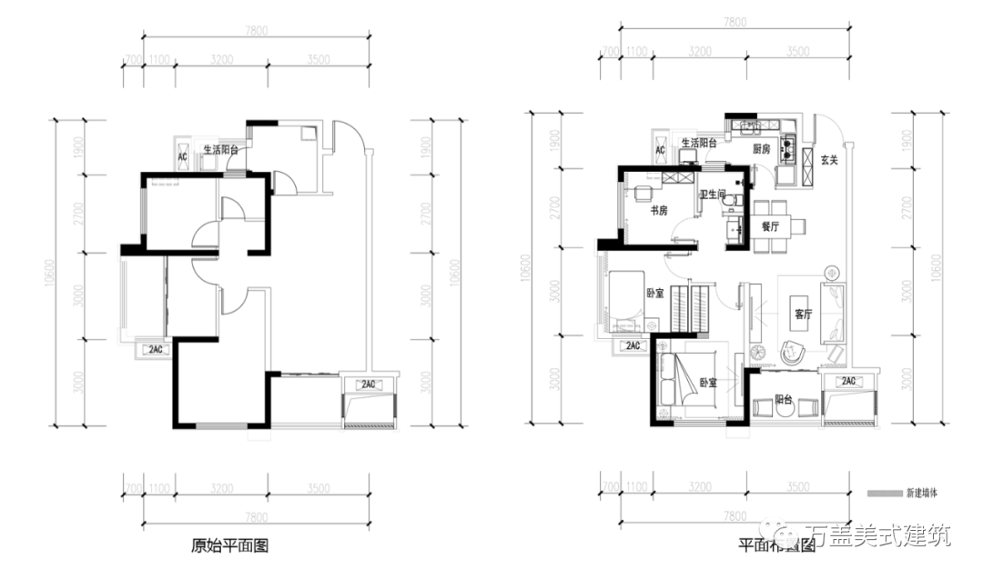
樣板房 | B1戶型


戶型:B1戶型
設計風格:現代輕奢



企業全稱:四川省萬蓋綠色建筑股份有限公司
Copyright ? 2024 All Rights Reserved 備案編號:蜀ICP備16014238號-1